Встраиваемая техника премиум-класса объединяет высокую функциональность с возможностью оптимально вписать устройство в интерьер кухни и сэкономить место. Встроенные микроволновые печи давно уже позволяют не только разогреть пищу, но и приготовить курицу или мясо с румяной корочкой, испечь пирог или кекс.
Микроволновка — агрегат не очень большой, он удачно встраивается в тумбу кухонного гарнитура, в подвесной шкафчик, в нишу. Современное производство СВЧ-печей ориентируется именно на встроенные модели — выбор их очень велик.
Кроме привычных печей-соло, которые готовят с помощью микроволн, в интернет-магазине «Хаусдорф» представлены устройства с грилем, конвекцией, функцией выпечки пиццы и быстрым размораживанием продуктов. Мы предлагаем покупателям модели с электронной и механической системой управления, в современном и классическом стиле, самых разных цветов, с отделкой из бронзы, стали, латуни. В конструкции встраиваемых моделей отсутствуют ножки для регулировки высоты, а фасад может быть декоративным или открытым.
Стандартные размеры встроенной микроволновки производители выбирают, исходя из габаритов кухонной мебели.
Ширина встраиваемых СВЧ-печей
- Минимальная ширина составляет не меньше 48 см. Узкие модели — большая редкость.
- Стандартная ширина составляет 58-60 см в соответствии с шириной кухонного шкафа или колонны. Например, пользуется спросом встроенная модель Bosch BFL 520 MS0 объемом 20 литров и шириной 60 см.
- Широкие встраиваемые устройства для дома (свыше 60 см) также выпускаются в ограниченном ассортименте. Например, Wolf ICBMDD30PM/S/PH шириной 76 см с откидной дверцей может считаться полупрофессиональной моделью.
Высота встраиваемых микроволновых печей
- Стандартная высота изделий составляет от 30 до 40 см, но печи высотой менее 35 см встречаются редко. Одна из самых низких Neff C17WR00N0 равна 38 см.
- Высокие модели — от 40 см и более. Печи выше 50 см — также большая редкость. Например, Kaiser EH 6319 в 49 см — одна из самых высоких в нашем магазине.
Глубина встраиваемых СВЧ-печей
- Минимальная глубина — 30-31 см. Неглубокие микроволновки имеют небольшой объем до 20 литров. Miele M6030SC EDST/CLST глубиной 31 см имеет объем 17 литров.
- Стандартные модели глубиной до 55 см — самые распространенные. Чаще всего можно увидеть СВЧ-печь глубиной 38-40 см.
- Глубокие модели — устройства большого объема, до 60-65 см. Smeg SF4800MPO глубиной 56 см имеет объем 40 литров.
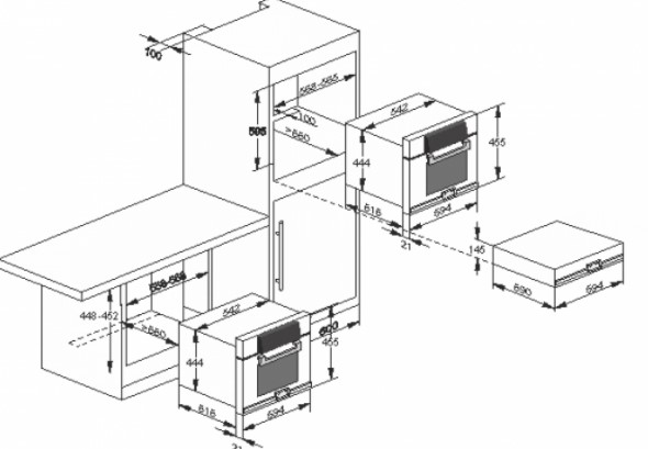
Параметры встраивания: размеры ниши и шкафа
Размещать микроволновку можно на любой высоте, но оптимальным считается положение не ниже уровня столешницы (82-85 см) и не выше уровня глаз — этот параметр подбирается индивидуально с учетом роста пользователя.
Если печь, особенно мультифункциональная, располагается на уровне лица, открывать ее следует осторожно во избежание ожога горячим паром. Рекомендуется избегать соседства СВЧ-печи с раковиной и варочной панелью, а также с радиатором отопления.
К каждому изделию, представленному в магазине, прилагается инструкция и схема встраивания с размерами, причем для большинства моделей приводятся размеры для встраивания как в шкаф, так и в нишу.

Например, для СВЧ-печи Smeg SF4102MB ширина ниши должна превышать ширину устройства на 4-10 см, высота — на 3-5 см, а глубина — на 12 см. Такие же соотношения соблюдаются при установке изделия в шкаф или колонну. Как правило, место для микроволновой печи подбирается еще на этапе проектирования кухни.