Духовой шкаф - пароварка Gaggenau BSP 261-111 в Краснодаре
Уникальные индивидуальные
условия при посещении магазина
Характеристики
Особенности
Описание
	Духовой шкаф — пароварка Gaggenau BSP 261-111 имеет сенсорный TFT — дисплей и поворотные переключатели. Панель управления интегрирована в дверцу и находиться сверху. Таймер обладает функциями приготовления, выключения, краткосрочной и долгосрочной. Точка кипения определяется автоматически. Функция памяти сохраняет выбранные вами режимы (включая рецепты с использованием термощупа). Трехточеченый температурный щуп отключается автоматически и отображает время. Система безопасности «защита от детей» уберегает от нежелательного сбоя настроек. Среди дополнительных преимуществ:
- Индикатор фактической температуры.
- Охлаждение корпуса прибора с термозащитой.
- Полностью автоматическаяпрограмма очистки от накипи.
Общие характеристики

Способ подключения духового шкафа — один из основных критериев выбора этого вида домашней техники.
В газовых духовых шкафах источником тепла служит газ — магистральный или баллонный. Попадая в горелку, газ смешивается с воздухом, образуя горячую смесь. Она разделяется на струи при помощи рассекателя, после чего воспламеняется от спички, зажигалки или встроенного электроподжига. Преимущество газовых духовок — доступные цены: газ по-прежнему остается дешевле электроэнергии, сами духовки имеют более простую конструкцию, меньший функционал и более простое в освоении механическое управление. Для них не требуется установка защищенных розеток, однако для подключения и обслуживания необходима помощь специалистов.
Электрические духовки — мощные приборы с большим количеством способов нагрева и обширным функционалом. Кроме верхнего и нижнего нагревательных элементов (ТЭНов), они оснащаются кольцевым нагревом, грилем, конвекционным вентилятором, микроволнами и паром. В числе их преимуществ — отсутствие открытого пламени, наличие программ очистки, самый широкий ассортимент. Недостатком электродуховок можно счесть более высокую стоимость и большую трудоемкость ремонта.

Высота духового шкафа — важнейший параметр, от которого напрямую зависит выбор модели. Если ранее духовки размещались только под варочной панелью, то сейчас выпускаются устройства, которые могут устанавливаться в пенал или колонну на произвольной высоте — например, чтобы не нужно было наклоняться к ним для контроля за ходом приготовления. В связи с этим изменились и требования к высоте самого прибора.
Стандартное значение этого параметра — от 55 до 60 см. Такие модели без труда встраиваются в кухонную тумбу, оснащаются несколькими уровнями приготовления и могут быть размещены в кухне достаточно большой площади. Если же площадь в кухне невелика, лучше выбрать компактную модель меньшей высоты.
Самую малую высоту — от 29 см — имеют отдельностоящие модели с небольшим количеством режимов нагрева. Они подойдут для одного-двух человек — позволят приготовить мясные и овощные блюда, выпечку, разморозить и разогреть продукты. Минимальная высота встраиваемых моделей — около 45 см при стандартной ширине. Это многофункциональные устройства с двумя или тремя уровнями приготовления.
Духовые шкафы увеличенной высоты производятся в ограниченном количестве. Высота таких моделей чаще всего составляет около 75 см.

Ширина духового шкафа — один из основных факторов, влияющих на выбор модели. Габариты встраиваемых бытовых приборов всегда приходится соотносить с размерами помещения, где они будут устанавливаться, а также с размерами кухонной мебели. Достаточно часто приходится выбирать ширину духовки и объем камеры, исходя из имеющегося свободного места.
Как известно, стандартная ширина кухонной тумбы составляет около 60 см — поэтому за стандартную ширину встраиваемого духового шкафа принимают 59,5 см. Такие духовки имеют по 3–4 уровня приготовления, в них можно приготовить достаточно объемные блюда. Минимальное значение ширины духовки также соотносится с размерами тумбы для встраивания — оно составляет 44–45 см. Это хороший выбор для небольшой кухни, однако узкие духовые шкафы имеют свои недостатки — в частности, в них невозможно приготовить большой пирог или торт, запечь целый окорок, индейку или большую рыбу.
Производители предлагают большой выбор духовок увеличенной ширины — до 90 см. Эти модели для просторных помещений имеют обширный функционал и часто поставляются только на заказ: приобретать их стоит, если пользователь привык готовить часто и помногу.

Глубина духовых шкафов, в отличие от их высоты и ширины, не отличается разнообразием. Стандартное значение составляет 54-55 см, что позволяет встраивать устройство в обычную кухонную тумбу или колонну глубиной 60 см так, чтобы оставалось достаточно места до задней стенки мебели или стены кухни для обеспечения нормальной вентиляции. В инструкциях по установке указывается, что это расстояние должно составить не менее 4–5 см. Объем такой духовки может быть равен от 50 до 70 литров.
В малогабаритной кухне нередко возникает необходимость установки духового шкафа малой глубины — 45–49 см. Такие духовки предлагает ряд известных производителей: например, модели Smeg имеют глубину 49 см при стандартной ширине и высоте, а некоторые модели Bosch — всего 45 см. Эти приборы не уступают стандартным по объему камеры и набору функций. Глубокие духовые шкафы требуют больших площадей, где может разместиться объемная кухонная мебель.
Глубина больших моделей может составлять 60-65 см: увеличивать этот параметр не имеет смысла, так как пользователь просто не сможет дотянуться до задней стенки духовки. В большинстве случаев увеличение объема духовки достигается за счет ширины и высоты.

Размеры ниши для встраивания духового шкафа определяются, исходя из габаритов самого устройства. Стандартные модели обычно без труда устанавливаются в нишу шириной около 560 мм, высотой около 595 мм и глубиной примерно 550 мм. Следует помнить, что фасад устройства должен иметь большие размеры, чем величина ниши.
При установке требуется строго соблюдать правила техники безопасности — в частности, выдерживать размеры всех зазоров между стенками духовки и стенками мебели, необходимые для беспрепятственной циркуляции воздуха. Так, расстояние до боковых стенок мебели должно составлять не менее 0,5–1 см, а до задней стенки — не менее 4–5 см.
При установке духового шкафа в тумбу необходим также зазор между прибором и полом не менее 8–10 см. Если же она устанавливается в колонну, следует убедиться, что при открывании дверцы в лицо не будет ударять горячий воздух, а панель управления легко доступна. Кроме того, необходимо обеспечить свободный доступ ко всем розеткам и кабелям — они не должны размещаться непосредственно за задней стенкой духового шкафа.
Ко всем моделям прилагаются подробные инструкции по установке, где указаны точные размеры ниши для каждой конкретной духовки.
Режимы и функции

Автоматические программы в духовых шкафах позволяют готовить с минимальными затратами времени и усилий. Каждая программа в зависимости от вида и веса продуктов или блюд автоматически подбирает установки духового шкафа, включая температуру, время приготовления и уровень, на котором будет установлен противень или решетка.
Выбор программы производится при помощи меню, где можно указать не только ее наименование и вес продуктов, но и другие параметры — например, степень прожарки мяса. В руководстве пользователя имеются таблицы, где подробно указывается, какие именно способы нагрева будут использоваться при выборе той или иной программы. В зависимости от модели в памяти устройства может содержаться от 5 до 150 программ, сгруппированных по виду продуктов — мясо, рыба, овощи, выпечка, десерты и т. д. Иногда пользователь может корректировать параметры приготовления или вносить в память собственные рецепты.
Ранее подобными программами оснащались модели премиум-класса с сенсорным управлением и большим цветным дисплеем — так, известная фирма Miele предлагает пользователю более 100 программ. Сейчас даже в моделях средней ценовой категории имеется от 5 до 30 автопрограмм.

Вы можете занести в память индивидуальные рецепты: температуру и режим нагрева, время приготовления. В следующий раз, когда вы будете готовить, достаточно выбрать сохраненные параметры, чтобы получить нужный результат. У разных моделей количество рецептов, которые можно добавить в память, различается — подробно об этом всегда написано в инструкции.

Режим размораживания в духовом шкафу позволяет полностью сохранить все питательные вещества, витамины и микроэлементы в составе продуктов, а также их натуральный вкус и внешний вид. В отличие от естественного размораживания, он помогает сэкономить время, так как процесс продолжается совсем недолго.
В современных духовках автоматическое размораживание может осуществляться несколькими способами. Первый — разморозка производится без установки температуры в камере, только за счет вентилятора. Воздух комнатной температуры обтекает находящийся в камере продукт, ускоряя его оттаивание. 
Второй способ — размораживание под действием вентиляции и повышенной температуры. Ее уровень обычно не превышает 30 градусов, так что процесс протекает в самом щадящем режиме. Этот способ рекомендуется для глубоко замороженных продуктов. 
Третий способ — использование конвекции. Его применяют, если отдельная функция размораживания отсутствует. 
При автоматической разморозке достаточно указать тип и вес продукта, а длительность будет определена системой управления самостоятельно. Продукты следует размещать на нижнем уровне на противне, в тарелке или керамической форме, не накрывая крышкой.
Функция приготовления SousVide

Sous-Vide — технология приготовления продуктов в вакуумных пакетах на пару. Благодаря этому при низкой температуре (60-90 градусов) вы можете «отварить» мясо, рыбу и овощи.
Плюсы этого способа:
- максимальная сочность готового блюда,
- сохранение полезных веществ,
- отсутствие масла и дополнительных жиров.
Функция Су-Вид в духовом шкафу — это длительный нагрев, который превращает воду, которую вы поставите в камеру, в обволакивающий пар.

Режим принудительной циркуляции воздуха обеспечивает равномерный прогрев блюда и спасает от подгоревшей корочки. Конвекция нужна, чтобы запекать большие куски мяса или рыбы, пироги. Благодаря обдуву можно также сделать нежные десерты, в которых сохраняется мягкая структура внутри.
Использовать режим в некоторых моделях можно без нагрева — тогда он помогает размораживать или высушивать продукты.

Регенерацией в духовых шкафах некоторых брендов называется режим подогрева готовых блюд. Благодаря обволакиванию теплым воздухом, еда «восстанавливается», не подсыхает и приближается по своему вкусу к свежеприготовленной.

Специальный режим для приготовления дрожжевого текста в духовых шкафах разных производителей, например, Neff. Оно становится мягким, пышным и быстро поднимается. Можно использовать для закваски йогурта.

Программа высушивания в духовом шкафу позволяет сушить фрукты, ягоды, грибы, зелень. Заготовленные таким образом продукты сохраняют до 95% витаминов и микроэлементов, что особенно важно в зимний период. Высушенные продукты не только служат экономии средств, но и занимают минимум места в квартире. В отличие от сушки на открытом воздухе, продукты лучше сохраняются, а сам процесс не зависит от погоды.
Самостоятельный режим сушки имеется в большинстве многофункциональных духовых шкафов. Он представляет собой сочетание кольцевого нагрева с вентилятором, а в моделях без кольцевого элемента его заменяет комбинация нижнего нагревательного элемента и вентилятора. Наличие вентилятора позволяет распределять горячий воздух по всей камере, так что продукты можно размещать на нескольких уровнях одновременно.
У некоторых производителей для высушивания используется режим «3D горячий воздух», который также представляет собой комбинацию кольцевого нагрева и вентиляции. Высушивание проходит при достаточно низких температурах около 80 градусов и имеет большую продолжительность, иногда до 12 часов. Дверцу духовки при этом держат приоткрытой, чтобы обеспечить испарение влаги.

Низкотемпературное приготовление в духовом шкафу — лучший способ сохранить все вкусовые качества продуктов и избежать при этом потерь влаги и разрушения полезных веществ. Готовка при высокой температуре экономит время, однако блюдо при этом легко пересушить или пережарить.
Технология готовки при низких температурах предусматривает нагрев не более чем до 100 градусов, а оптимальное значение температуры в камере составит около 80 градусов. Болезнетворные бактерии при этом погибают, а вкус и сочность полностью сохраняются. Способ приготовления был описан в 18 веке британским физиком Б. Томпсоном, который оставил кусок мяса в не остывшей печи на ночь, а утром обнаружил, что оно оказалось полностью готовым, очень вкусным и мягким. Действительно, мясо, приготовленное при низкой температуре, имеет деликатную и нежную структуру, однако на нем не образуется хрустящая корочка.
Такие блюда подойдут для детей, для выздоравливающих и пожилых людей. Разновидностью приготовления при низких температурах является су-вид — метод, в котором к низкой температуре не более 70 градусов и большой продолжительности приготовления добавляется вакуумирование продуктов.

Режим «Горячий воздух» в духовом шкафу отличается тем, что нагрев происходит не посредством инфракрасного излучения, а при помощи потока нагретого до заданной температуры воздуха, который поступает из задней части рабочей камеры.
Воздух нагревается с помощью кольцевого нагревательного элемента, а затем равномерно распределяется по всему объему благодаря работе вентилятора. Блюда в этом режиме готовятся на одном уровне — как правило, среднем — для лучшего пропекания со всех сторон. Еще одно преимущество этого режима — использование достаточно низких температур. Его особенности позволяют устанавливать температуру на 20-30 градусов ниже, чем при традиционном нагрева: оптимальный уровень температуры в этом режиме — около 180 градусов.
Горячий воздух с предварительным разогревом духовки подходит для выпечки, в том числе больших пирогов, бисквитов, песочных коржей для торта, безе, слоеных изделий, открытых пирогов и пиццы — при отсутствии отдельной программы ее приготовления. Он подойдет также для запекания мяса. Разновидностью этого режима является «Горячий воздух Eco» со сниженным потреблением электроэнергии и несколько большей продолжительностью приготовления.

Режим «Пар+Горячий воздух», который иногда называют просто «Горячий пар» или «Комби-пар», присутствует практически во всех духовых шкафах с функцией парообразования. Комбинируя режим горячего воздуха, который представляет собой результат работы верхнего и нижнего жара и вентилятора, и режим пара, образующегося при помощи специального парогенератора, можно приготовить множество блюд.
Горячий воздух с температурой от 140 до 250 градусов позволяет создать хрустящую румяную корочку, а пар придает особую сочность внутренней части блюда при сохранении всех полезных веществ. В большинстве духовых шкафов пар, температура которого составляет 100°C, подается в рабочую камеру через определенные интервалы.
Высокий уровень подачи пара в комбинации с горячим воздухом может подойти для мясных блюд — стейков, запеченного мяса. При среднем уровне пара в сочетании с горячим воздухом можно производить разморозку замороженных продуктов и готовых блюд, делать овощные запеканки, готовить рыбу. Низкий уровень пара + горячий воздух — лучший режим для выпечки хлеба, булочек, в том числе слоеных, для приготовления запеканок — например, лазаньи, а также для блюд из птицы.
Средней влажности
Высокой влажности

Гриль — популярный, востребованный и широко известный элемент духовки, который представляет собой дополнительный нагревательный элемент, установленный в верхней части рабочей камеры. Грилем оснащаются практически все современные духовки: он обозначается значком в виде квадрата с зигзагообразной линией в верхней части. Гриль способен поддерживать высокую температуру, благодаря чему блюдо дополнительно подрумянивается сверху так, что создается любимая многими хрустящая корочка.
По типу нагрева гриль подразделяется на газовый, электрический и инфракрасный. Газовый гриль представляет собой дополнительную горелку с электроподжигом и плавной регулировкой мощности пламени, которую подключают к магистральному или баллонному газу. 
Электрический гриль — это трубчатый нагревательный элемент, который может занимать всю площадь в верхней части камеры (большой гриль) или только часть ее (малый гриль). Оба гриля могут также использоваться совместно. 
Инфракрасный гриль в духовом шкафу позволяет готовить пищу при помощи инфракрасного излучения, идущего от специальной стеклокерамической поверхности. Этот тип нагрева особенно эффективен, он позволяет быстро довести блюдо до нужного состояния.

Большой гриль, который называют также двойной или макси-гриль, — одна из разновидностей гриля в духовых шкафах, отличающаяся самой высокой мощностью. Грилем оснащаются практически все духовки: он позволяет получить блюдо с румяной хрустящей корочкой, готовить без добавления масла или жира.
Гриль представляет собой трубчатый нагревательный элемент в форме зигзага, буквы «П», одного или двух прямоугольников, который устанавливается в верхней части рабочей камеры и воздействует на помещенные в духовку продукты тепловым и инфракрасным излучением. Большим грилем называют прямоугольный элемент, идущий по периметру потолка камеры. Иногда под большим грилем понимают совместное воздействие такого гриля и верхнего жара. Температурное воздействие большого гриля распространяется на всю площадь духовки: блюда можно размещать на всей решетке или противне, а также готовить на вертеле, не боясь, что оно останется сырым по краям.
Этот режим подходит для приготовления при высокой температуре больших кусков мяса, птицы целиком, стейков, гамбургеров, запеченных овощей. Для готовки подойдут любые формы, которые рекомендуется размещать на верхнем или среднем уровне.
Горячий воздух + влажность 80 %
Горячий воздух + влажность 60 %
Горячий воздух + влажность 30 %
Горячий воздух + влажность 0 %
Гриль большой площади, ступень 1 + влажность
Гриль большой площади, ступень 2 + влажность
Гриль большой площади + конвекция
Функция осаждения пара
Паровой удар
Внешняя генерация пара
Пар без давления
Внутренняя камера

Объем духового шкафа — определяющая характеристика, на которую прежде всего ориентируются при подборе модели. Выбор того или иного объема зависит от целого ряда факторов — в первую очередь размеров и планировки кухни, а кроме того: количества членов семьи, в том числе детей, пищевых привычек, умения готовить и планируемой частоты использования.
Объем рабочей камеры определяется прежде всего габаритами прибора. Глубина духовок обычно составляет 55–59 см, высота чаще всего принимает два значения — 45 см или 60 см, так что в большей степени объем зависит от ширины. В настоящее время производители выпускают несколько вариантов духовок по ширине и высоте: стандартные шириной и высотой 60 см, компактные шириной 60 см и высотой 45 см, узкие — 45×60 см, широкие — 90×60 см и широкие компактные — 90×45 см. Ряд фирм предлагает также духовки нестандартных размеров.
Встраиваемые приборы принято делить на духовки большого объема — свыше 70 литров, стандартные — их объем составляет от 50 до 70 литров, и компактные — их объем не превышает 50 литров. Максимальное значение объема духовки может достигать 120 литров и более: так, шкафы Fulgor Milano высотой 70 см и шириной 75 см имеют объем 123 литра. Настольные духовые шкафы, как правило, отличаются небольшими габаритами и объемом — минимальное его значение составляет всего 12 литров.
Следует различать общий и полезный объем духового шкафа. Полезный объем — место в камере, где можно разместить противни, решетки, вертел и посуду с готовящимся блюдом. Если общий объем полностью определяется шириной, высотой и глубиной камеры, то полезный уменьшается за счет расположения нагревательных элементов — гриля нескольких видов, вентилятора, кольцевого нагревательного элемента, магнетрона, системы парообразования, которые «съедают» свободное пространство.

Чаще всего духовки покрываются изнутри эмалью. Есть несколько видов, которые связаны прежде всего с удалением грязи:
- каталитическая (шершавая, расщепляющая жир в процессе готовки),
- легкой очистки (гладкая, отталкивающая частицы еды),
- пиролитическая (устойчивая к высоким температурам, при которых сжигаются загрязнения).
У разных производителей есть собственные, запатентованные виды эмали, которые по сути являются вариациями выше перечисленных.

Освещение — опция, которая имеется во всех современных духовых шкафах, как электрических, так и газовых. В некоторых моделях освещение включается, как только запускается процесс приготовления. В другом, более удобном варианте, подсветка автоматически срабатывает только при открытой дверце, однако может быть включена принудительно при нажатии на соответствующую кнопку панели управления.
Освещение при помощи одной или двух ламп позволяет визуально контролировать процесс приготовления блюда без открытия дверцы, что способствует экономии энергии и безопасности использования. Это особенно важно при освоении новых рецептов, знакомства с новыми моделями духовых шкафов. Подсветка необходима также при уходе за внутренней поверхностью камеры. Лампы обычно располагаются внутри камеры так, чтобы наилучшим образом освещать зону готовки, но не мешать размещению посуды. Лучший объемный обзор гарантирован в духовках с двумя источниками света.
Лампочки, которые используются для подсветки, должны обладать наиболее важным свойством — термостойкостью, так как температуры в рабочей камере может достигать 220 градусов, а при наличии пиролитической очистки — и 500 градусов. Большинство ламп рассчитано на температуру 300 градусов. В духовках с функцией пара необходима также хорошая защита от влаги, а для защиты их от механических повреждений служит специальный плафон.
Чаще всего для освещения используются яркие и экономичные галогенные лампы или несколько реже лампы накаливания. Так, лампы с цоколем Е14 мощностью 15, 25 и 40 Вт подходят практически ко всем моделям духовок. Что касается светодиодных ламп, то допустимо только применение специальных модификаций: обычные светодиоды рекомендуется использовать только при низких температурах.
Дизайн

Цвет фасада духовки — фактор, на который неизменно обращают внимание при поиске модели. Производители предлагают достаточно большой выбор оттенков духового шкафа, включая как универсальные, подходящие практически к любому интерьеру, так и оригинальные.
Наиболее распространенным решением является черный фасад духовки, нередко с деталями из металла — например, нержавеющей стали. Этот вариант чаще всего выбирают, если кухня оформлена в современном стиле — хай-тек, минималистическом, техно. Следует помнить, что на черном лучше заметны загрязнения: брызги воды, отпечатки пальцев, разводы, так что эти фасады требуют тщательного ухода.
Белый фасад духовки — классический вариант: именно в белом цвете эти приборы производились многие десятилетия. Он стильно выглядит, менее маркий, более удобный в уходе: подойдет как для классических, так и для современных интерьеров. Кроме того, белая духовка будет оптимальным вариантом для небольшой кухни, так как этот цвет зрительно расширяет пространство.
Популярными остаются и оттенки белого — например, цвет слоновой кости. Бежевый или кремовый фасад — находка для кухни в деревенском или ретро-стиле. Он также практичен и прост в уходе; нередко бежевые духовки дополняются фурнитурой из латуни или бронзы.
Фасады из нержавеющей стали считаются наиболее надежными; они идеально подходят для кухни современного дизайна, а покрытие от отпечатков пальцев облегчает их очистку.
Цветные фасады духовок можно найти у таких производителей, как итальянские Smeg, ILVE, Restart, Bertazzoni, немецкие Kuppersberg и Kaiser. Эти фирмы предлагают духовки с фасадами красного, зеленого, синего, коричневого цветов с богатой и оригинальной фурнитурой, а также интересные варианты в цвете меди и платины.
Управление

Тип управления духовым шкафом — одна из важнейших характеристик, влияющих на выбор той или иной модели. Современные духовки могут иметь механическое либо электронное управление — разновидностью последнего можно считать сенсорное.
Тип управления отчасти зависит от принципа нагрева: газовые духовки обычно имеют механическое управление, а электрические выпускаются в обоих вариантах. Механическим управлением, наиболее простым и надежным, оснащаются и бюджетные устройства, и модели премиум-класса в стиле ретро, классика или кантри. Регулировка параметров приготовления, в том числе режима работы, времени и температуры, производится при помощи поворотных переключателей и кнопок. Недостаток подобного типа управления — наличие выступающих деталей, которые трудно очистить.
Электронное управление также может осуществляться при помощи поворотных программаторов, которые сочетаются с сенсорными кнопками и дисплеем. Такая панель значительно удобнее в уходе. Наряду с сенсорами на панели управления присутствуют индикаторы, которые оповещают об актуальных характеристиках работы. Минус сенсорного управления — повышенная чувствительность к перепадам напряжение и достаточно сложный ремонт.

Элементы управления в духовом шкафу служат для включения и выключения прибора, установки температуры в камере, выбора режима и типа нагрева, задания времени приготовления, активации дополнительных функций — активации пара и микроволн, очистки камеры, отсрочки старта и многих других. 
Они располагаются обычно в верхней части фасада духовки, что обусловлено самым удобным доступом к ним: все обозначения и индикаторы в таком случае хорошо различимы. 
В моделях с механическим управлением для установки температуры, длительности приготовления и для выбора режима работы используются выступающие над поверхностью поворотные переключатели. 
В целях безопасности — в том числе для защиты от детей — их иногда делают утапливаемыми. При легком нажатии рукоятки переключателей скрываются в специальном отверстии и фиксируются там, так что поверхность становится ровной. Для того, чтобы извлечь переключатель, на него также следует нажать — только в выдвинутом состоянии рукоятки могут поворачиваться для регулировки интенсивности нагрева. Эта особенность также облегчает уход за панелью управления. Подсветка поворотных переключателей оповещает о том, какие настойки выбраны в данный момент. 
В моделях с электрическим и сенсорным управлением наряду с сенсорным дисплеем и обычными кнопками также используются усовершенствованные переключатели. Так, в духовках «Бош» имеются утапливаемые переключатели Rotary Control или кольцевые переключатели Control Ring: для выбора настроек их не нужно вращать — достаточно провести пальцем по кольцу. Для управления духовками V-ZUG используется переключатель CircleSlider, расположенный в центре сенсорного дисплея — для выбора параметров работы по нему также достаточно провести пальцем.

Дисплей в современных духовых шкафах — неотъемлемая часть панели управления, позволяющая полностью контролировать процесс приготовления, задавать параметры работы, вступать в диалог с системой управления прибором.
В самом простом варианте духовки оснащаются LCD-дисплеем на основе жидких кристаллов — монохромным или с 2-5 цветами. На него выводятся условные обозначения режимов работы или активных опций, а также числа — в первую очередь время, оставшееся до отключения духовки, текущее время, температура в камере. 
TFT-дисплей — усовершенствованный вариант LCD-дисплея, имеющий больший набор возможностей: в частности, он позволяет отображать текстовые сообщения, изображения и видео. 
LED-дисплей отличается от LCD-дисплея более совершенным светодиодным методом подсветки кристаллов и соответственно лучшим качеством изображения. На LED-дисплеях наглядно отображается весь ход выбранных программ, часы с памятью на случай отключения электроэнергии, данные таймера обратного и прямого отсчета, другие опции — например, блокировка от детей, время отложенного старта и другие.
По способу управления можно выделить механические, электронные и сенсорные панели. Дисплеи присутствуют в двух последних вариантах. Электронное управление сочетает дисплей, кнопки и поворотные регуляторы. Сенсорные дисплеи отличаются тем, что все команды в них вводятся прикосновением к той или иной области экрана. Большие многоязычные сенсорные цветные дисплеи с выводом изображений и анимации — принадлежность духовок премиум-класса. Сенсорное управление позволяет работать с интерактивным меню, использовать встроенные книги рецептов, получать подсказки при приготовлении тех или иных продуктов и даже сохранять фотографии любимых блюд.

Индикация на панели управления духовым шкафом позволяет отслеживать ход работы, оповещает об активации тех или иных функций, повышает уровень безопасности при использовании устройства.
В отличие от варочной панели, где в качестве индикаторов используются светодиоды, в большинстве духовых шкафов присутствует только светодиодная индикация включения-выключения и остаточного тепла. Последняя свидетельствует о том, что духовка не успела остыть после выключения. Индикатор имеется и в духовых шкафах с функцией пара — его включение означает, что вода в резервуаре заканчивается, и требуется долив.
Большинство же оповещений о ходе приготовления реализуется при помощи поворотных переключателей и дисплеев разного типа. В духовках с механическим управлением о выбранном режиме нагрева, установленной температуре и продолжительности приготовления (а в некоторых моделях — оставшемся до его окончания времени) можно судить по положению поворотного переключателя.
Гораздо нагляднее индикация в духовках с электронным управлением. На панели управления находится дисплей — текстовый или цифровой, на котором высвечиваются сообщения, оповещающие об активации той или иной опции. В более простых случаях духовки оснащаются сегментным ЖК-дисплеем, на который выводятся условные обозначения и числа. На нем может появляться, например, сообщение об уровне мощности гриля или микроволн, о выбранной температуре, о времени, оставшемся до отключения духовки, об запланированной отсрочке старта. TFT-дисплей имеет больший набор возможностей: на нем отображаются не только символы и цифры, но и полноценный текст, а также изображения.
Сенсорный дисплей работает одновременно как устройство управления и устройство вывода данных, он может функционировать в интерактивном режиме. Духовки с текстовым дисплеем позволяют отобразить большее количество опций: как правило, они обладают и большим функционалом. Кроме выбранного режима работы и установленной температуры они отображают, например, фактическое ее значение, достигнутое на данный момент. На дисплее могут также появляться рекомендации по выбору автоматической программы для приготовления определенного вида продуктов, по установке температуры и времени приготовления. Здесь же выдаются сообщения о блокировке дверцы или панели управления, о зафиксированных ошибках, уровне мощности микроволн и пара.

Таймеры в духовом шкафу предназначаются для контроля готовности блюд, а также позволяют сэкономить электроэнергию и время, обеспечить безопасность использования прибора и снизить риск травмы.
В современных духовых шкафах применяются как электронные, так и механические таймеры. Как правило, они рассчитаны на время от 1 до 99 минут: для долго готовящихся блюд их приходится устанавливать дважды. 
С помощью таймеров обратного отсчета можно установить длительность приготовления. По истечении заданного времени раздается звуковой сигнал, но нагрев не прекращается. Такой таймер позволит, например, вовремя перевернуть или помешать блюдо, добавить ингредиенты или полить соусом. 
Таймер с автоматическим отключением не только оповещает о завершении приготовления звуковым сигналом, но и отключает нагрев. В ряде моделей при необходимости (например, ночью или во время дневного сна детей) пользователь может самостоятельно отключить звуковой сигнал или снизить его громкость. Некоторые производители оснащают свои приборы таймером-будильником, который не связан с нагревом духовки: он будет работать, когда плита отключена, и подаст звуковой сигнал в заданное время.

Регулировка температуры в духовке позволяет придерживаться оптимальных условий для тушения, жарки, запекания, выпечки, томления, сушки и других способов обработки продуктов.
В современных духовых шкафах имеются все типы нагрева — традиционный, гриль, конвекция, нагрев при помощи пара и микроволн. Самый широкий диапазон температур доступен при использовании верхнего и нижнего жара и гриля. В большинстве духовок температура устанавливается в пределах от 50 до 250 градусов. При этом температуры меньше 130 градусов считаются низкими, до 190 градусов — средними, до 250 — высокими. Максимальные значения ее используются редко — например, для быстрого обжаривания мяса.
Температура в газовых духовках несколько ниже, чем в электрических — ее максимум составляет 250 градусов, в то время как в электрических температура достигает 300 и даже 500 градусов при пиролитической очистке. При использовании конвекции температуру рекомендуется выставлять на 20–30 градусов ниже, чем при обычном нагреве, из-за перемешивания воздуха. При использовании микроволн максимальная температура внутри камеры не превышает 100–110 градусов — этого достаточно для проникновения излучения на всю глубину продуктов.
Комплектация

Комплектация духовых шкафов подразумевает набор аксессуаров, которые позволяют воспользоваться всеми имеющимися режимами приготовления. Состав комплекта зависит от фирмы-производителя, ценовой категории устройства, от представленных в духовке режимов нагрева и дополнительных опций. Полное описание комплекта поставки можно найти в руководстве пользователя.
В стандартную комплектацию любого духового шкафа входят один или два противня — эмалированных или с антипригарным покрытием — и решетка. Единственный противень, как правило, имеет низкие бортики и предназначается для приготовления выпечки. Если духовка комплектуется двумя противнями, то второй отличается более высокими бортиками — его можно использовать для запекания мяса, птицы, овощных блюд. На решетке в духовке, не оснащенной грилем, обычно устанавливаются формы для запекания — стальные, керамические или стеклянные. В духовках премиум-класса количество противней может быть увеличено: к стандартному комплекту добавляются противни с перфорацией для мяса, специальные поддоны для сбора выделившегося сока.
Духовки с грилем комплектуются противнями с рифленой поверхностью и усиленной решеткой из хромированной стали или нержавейки, на которую помещают мясо, птицу или овощи. Модели с грилем могут оснащаться вертелом для запекания больших кусков мяса, цельной птицы или рыбы, а также специальными держателями для продуктов. Иногда в комплект включаются также круглые противни и камни для выпечки хлеба или пиццы.
С духовыми шкафами с функцией СВЧ могут поставляться стеклянные поворотные столы и круглые стеклянные формы для приготовления блюд. Духовки с системой парообразования могут комплектоваться особыми паровыми противнями с перфорацией, специальными подставками, резервуарами и воронками для воды, трубками подачи пара, закрытыми формами с отверстием для трубки.
Кроме противней, форм и решеток, духовки могут дополняться комплектами телескопических или съемных направляющих, которые служат для размещения блюд на нескольких уровнях. В элитных моделях в комплект может входить термощуп для определения температуры внутри готовящихся блюд. Он подсоединяется к панели управления и автоматически передает информацию управляющей системе. В газовых духовках в комплект входят форсунки (жиклеры) для подключения прибора к сжиженному газу в баллонах.
Жироулавливающий фильтр
Съемный натяжной фильтр
Штепсельная вилка с заземлением
Очистка

Традиционная — механическая очистка вручную, которую редко встретишь в современных моделях.
Пиролитическая — жир и остатки пищи «сгорают» при повышении температуры до 500 градусов. Такая очистка эффективна, но агрессивна, поэтому в духовых шкафах с пиролизом есть автоблокировка двери. По окончании цикла вам нужно только убрать пепел. 
Во многих моделях направляющие для противней устойчивы к пиролитическому воздействию, поэтому не нужно их убирать заранее. 
Каталитическая (EcoClean) — специальная пористая эмаль покрывает стенки и растворяет попадающий жир прямо во время готовки. Ее не накладывают на дно духовки, потому что она не защищена от сахара и молочных продуктов, поэтому его придется оттирать самостоятельно. 
Иногда каталитические панели покрывают только заднюю стенку и сочетаются с другими формами самоочистки. 
Паровая (Aqua Clean, EasyClean, HydroClean, гидролиз) — вам нужно налить в специальную емкость воду (простую или с моющим средством) и оставить в камере на полчаса. Очистка проходит при небольших температурах, жир расщепляется с помощью пара и стекает в поддон. 
По окончании вам нужно протереть поверхности и убрать остатки загрязнений и моющего средства. 
У разных производителей есть собственные, запатентованные формы очистки, которые по сути являются вариациями выше перечисленных.

Функция очистки от накипи в духовке с парогенератором позволяет продлить срок службы прибора, предохранить от поломок, а также не допустить попадания в готовящуюся пищу вредных веществ.
Накипь в парогенераторе образуется при нагреве воды, которая служит для получения пара. В большинстве современных духовок с функцией пара используется не дистиллированная, а обычная бутилированная и водопроводная вода, которая может содержать соли кальция, магния или железа. При закипании воды эти примеси выпадают в осадок, который плотно пристает к нагревательным элементам, соприкасающимся с водой: при этом образуется толстый слой налета, который с трудом удаляется вручную. Накипь препятствует нагреву воды, замедляя его — в конечном счете прибор может выйти из строя.
Очистка от накипи призвана растворить этот налет под воздействием чистящего средства, содержащего кислоту. В качестве такого средства может использоваться обычная лимонная кислота или уксус, а также специальные порошки и таблетки, которые предлагают производители бытовой техники. Эти средства добавляются в воду в резервуаре: затем необходимо включить духовку на 10–15 минут в режиме парообразования или использовать специальную программу очистки.
Технические характеристики
Безопасность

Система, защищающая детей от ожогов, а духовой шкаф — от изменения настроек.
Есть несколько типов защиты:
- блокировка двери — замок, который не дает ребенку открыть дверь во время приготовления;
- блокировка панели управления — нужно повернуть регулятор или нажать кнопку, в итоге нельзя менять параметры, а вернуть управление можно только той же комбинацией;
- блокировка двери при пиролитической очистке.
В большинстве моделей защита включает в себя и замок на двери, и блокировку панели.
Дополнительные характеристики
Персонализация автоматических программ
Кнопка для вызова информации с указаниями по обслуживанию.
Дверь открывается в сторону, угол открытия до 110 °
Трехточеченый температурный щуп с автоматическим отключением и отображением времени
Функции таймера: таймер приготовления, таймер выключения, краткосрочный и долгосрочный таймер
Автоматическое определение точки кипения
Home Connect
Защита на время отпуска
Охлаждение корпуса прибора с термозащитой
Полностью автоматическаяпрограмма очистки от накипи
Программа очистки
Фасад прибора выступает на 21 мм от уровня мебели
Внешний край дверной ручки выступает на 72 мм от поверхности мебели
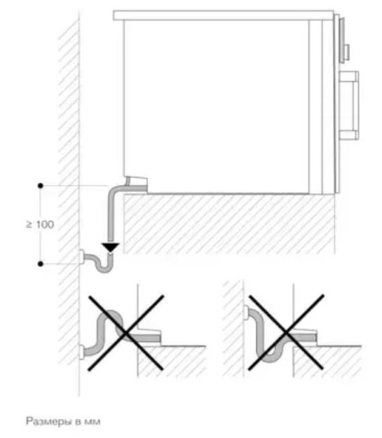
Шланг для подвода воды, диаметр подключения ¾" (26,4 мм)
Шланг для отвода воды (ø 24 mm) длина 3.0 м
Потребляемая мощность в режиме ожидания / включенного дисплея 0.8 Вт
Потребляемая мощность в режиме ожидания / выключенного дисплея 0.5 Вт
Время автоматического режима ожидания / включенного дисплея 20 мин
Время автоматического режима ожидания / выключенного дисплея 20 мин
Время автоматического режима ожидания / в сети 20 мин
Установка вровень с мебельным фронтом
Стационарное подключение к холодной воде
Левый дверной упор, управление находиться сверху
Материал двери: стекло
Энергопотребление в режиме конвекции за цикл (2010 / 30 / EC) 0.72
Индекс энергопотребления (2010 / 30/ EC) 94.7
Инструкции
Компания Gaggenau, производящая бытовую технику премиум-класса, в настоящее время является частью немецкого концерна BSH Hausgeräte GmbH (вместе с брендами Bosch и Siemens). До включения в эту корпорацию компания имела собственную долгую историю — ее основание относится к концу 17 века. Сначала мастерская в городке «Гаггенау» занималась изготовлением гвоздей, затем — сельскохозяйственного оборудования. В 1880 году ей была создана фирменная особо прочная эмаль, которой стали покрывать внутренние стенки духовок.
Собственное производство бытовой техники было запущено в 30-е годы 20 века, причем предпочтение отдавалось устройствам для приготовления пищи — газовым, угольным, а затем и электрическим плитам. Позже компания начала выпускать встраиваемую технику — встроенные на уровне глаз духовки, независимые варочные панели и вытяжки. Именно здесь была изготовлена первая духовка шириной 90 см с приготовлением на 4 уровнях.
Уже в 21 веке разработана и внедрена модульная система встраивания бытовой техники и совместная установка приборов в колонну. Вся продукция компании высшего класса и пользуется спросом не только у ценителей высококачественной техники, но и у поваров-профессионалов.
Доставка заказов магазином осуществляется до терминала транспортной компании. Вы можете забрать технику оттуда самостоятельно или оформить доставку по адресу проживания, которая проводится сотрудниками ТК.
Точную стоимость сообщит менеджер при подтверждении заказа. Сроки могут варьироваться в зависимости от наличия модели на складе, ограничений или специальных условий бренда. Вы можете выбрать подходящую дату доставки в город.
На сегодняшний день товара нет в наличии на складе — необходимо дождаться его поступления от поставщика. Вероятные сроки отгрузки озвучит менеджер при подтверждении заказа.
Так как дата доставки согласовывается заранее, рассчитывайте свое время, чтобы принять заказ. Если транспортная компания переносит ее по своим причинам, с вами свяжутся, чтобы выбрать подходящий вариант в ближайшее время. Обратите внимание: при доставке до квартиры в полномочия работника не входят занос техники в помещение или подготовка ее к установке. Внимательно осматривайте товар при получении — вы можете отказаться до подписания документов, если обнаружите повреждения.
Для подключения техники необходимо вызвать мастера, так как эта услуга предоставляется отдельно от доставки. Осуществляется компаниями-партнерами, с которыми наш магазин сотрудничает в Краснодаре. Ориентировочную стоимость для основных категорий техники вы можете узнать в специальном разделе. Точную цену (в зависимости от компании) вам сообщит менеджер.
На этот товар действует бесплатная доставка до терминала транспортной компании (при общей стоимости заказа от 150 000 млн рублей. Перемещение на адрес заказчика оплачивается дополнительно.
Подъем техники на лифте стоит от 50 до 250 рублей в зависимости от веса товара. Если в доме нет лифта, то подъем оплачивается по схеме 50-250 рублей/этаж.
Установка и подключение этого товара на готовые коммуникации проводится нашими специалистами бесплатно (при общей стоимости заказа от 500 000 рублей). Обратите внимание, что демонтаж старой техники — это отдельная услуга.
Оформляя заказ на сайте через корзину, вы можете выбрать один из вариантов оплаты:
- онлайн через электронную систему платежей;
- безналичным расчетом.
При оформлении заказа по телефону (или при его подтверждении после отправки формы на сайте) менеджер подробно расскажет вам, как оформить предоплату.
На данный товар распространяется официальная гарантия производителя. Обслуживание в течение всего гарантийного срока осуществляется авторизованными сервисными центрами производителя в соответствии с требованиями, указанными в Законе РФ «О защите прав потребителей».
 Обратите внимание: гарантийный срок и установленный производителем срок службы — это разные понятия. Изготовитель принимает на себя ответственность по устранению неисправностей, если не указано обратного.
ВАЖНО!
 При получении обязательно осмотрите прибор: нет ли на нем механических повреждений, соответствует ли комплектация заявленной.
Обратите внимание:
- Есть функции:
- ‐ Автоматический/Шеф режим
- ‐ Гриль с конвекцией
- ‐ Охлаждение/вентиляция
- Высота: меньше на 0.5 см
- Габариты, ВхШхГ (см): 45х59х54
- Размеры в упаковке, ВхШхГ (см): 59х66х59
- Температура фронта дверцы: 30.0000 °C
- 
															Индикация:
 ‐ индикатор уровня воды
 
- 
															Дополнительная комплектация:
 ‐ 2 съемных контейнера для чистой и использованной воды
 ‐ Wi-Fi модуль
 ‐ Штепсельной вилка с заземлением
 
- Цвет: серебристый
- Высота: меньше на 0.5 см
- Габариты, ВхШхГ (см): 45х59х54
- Размеры в упаковке, ВхШхГ (см): 59х66х59
- 
															Индикация:
 ‐ индикатор уровня воды
 
- 
															Дополнительная комплектация:
 ‐ 2 съемных контейнера для чистой и использованной воды
 ‐ Wi-Fi модуль
 ‐ Штепсельной вилка с заземлением
 
 
																		
																		 
																		
																		 
																		
																		 
																		
																		 
																		
																		 
																		
																		 
																		
																		 
																		
																		 
																		
																		 
																		
																		 
																		
																		 
																		
																		 
																
															 
															 
															 
															 
															 
															 
															 
															 
															 
																
															 
																
															 
																
															 
												 
												 
												 
												 
												 
												 
												 
												 
																						 
																						 
																						 
																						 
																						 
																						 
																						 
																						 
																						 
																						 
												 
												 
												 
																	
																 
																	
																 
																	
																 
																	
																 
																	
																 
																	
																 
																	
																 
																	
																 
																	 
																	